Skip to main content

2022

Diez, Wilhelm-Straße

ZUM VERKAUF

Im Frühjahr 2022 wurde der Kaufvertrag notariell beurkundet. Die Erwirkung der Baugenehmigung lief parallel und ist im Sommer 2022 abgeschlossen. Ein Generalmietvertrag über das gesamte Gebäude ist abgeschlossen. Zukünftig werden auf den 2.680 qm (knapp 3.500 qm BGF) Nutz- und Wohnfläche eine Bäckerei, ein Cafe, eine Veranstaltungsraum und 30 Apartments Platz finden.

Das in den Hang der Wilhelmstr. 47, Diez, gebaute, 4-stöckige, Mehrfamilienhaus wurde Anfang des 20. Jahrhunderts errichtet. Die letzten Jahrzehnte ist es vorwiegend für Tagungen, Veranstaltungen und die Unterbringung der jeweiligen Teilnehmer verwendet worden. Hierzu wurde zuletzt in den Hinterhof eine sehr aufwendige und kostspielige Fluchttreppe in Metallbauweise gebaut. Den Bewohnern des Gebäudes wurde so im Brandfall ein zweiter Evakuierungsweg geschaffen. Diese Konstruktion eröffnet neue Nutzungsmöglichkeiten und steigert den Wert der Immobilie. Das Objekt ist in einem allgemein guten Zustand. Eingriffe in die Statik des Gebäudes sind nicht notwendig. Umfangreiche Sanierungsmaßnahmen nicht erforderlich. Geplant sind die Erneuerung einiger Türen und der Bodenbeläge sowie ein punktueller Austausch einiger Fenster.

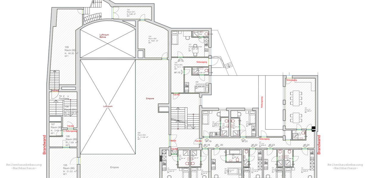
Das Gebäude besteht aus drei verschiedenen Nutzungszonen. Im Erdgeschoß befinden sich ca. 430 qm für die gewerbliche Nutzung. In einem Teil des Gebäudes werden eine Bäckerei mit eigenem Backofen und einem vorgelagerten Verkaufsraum entstehen. Auf dieser Ebene wird auch Platz für ein Café mit Verbindungswegen zur Bäckerei und einer Kapazität von bis zu 40 Personen sein. Brandschutztüren grenzen diesen Bereich baulich von den darüber befindlichen Räumlichkeiten ab. Für das gesamte Gebäude wurde ein Brandschutzkonzept von Experten entwickelt und von den zuständigen Behörden für genehmigungswürdig erachtet.

Im 2. und 3. Obergeschoss (auf der linken Seite des Gebäudes) befindet sich, über ein separates Treppenhaus erreichbar, ein Veranstaltungsraum mit über 500 qm Nutzfläche. Er kann für Hochzeiten, Taufen, Feiern, Zusammenkünfte, Sitzungen oder auch Vorführungen genutzt werden. Ein voll ausgestatteter und funktionsfähiger Thekenbereich, inkl. Kühlraum für Getränke, ist bereits eingebaut. Ein Bühnenbereich lädt zu Theater- oder Tanz-Events ein. Insgesamt können dort bis zu 200 Personen Platz finden.

Auf der rechten Seite des Gebäudes erstrecken sich über das 1., das 2. und das 3. Obergeschoß insgesamt 30 Apartments mit einer Wohnfläche von 18 – 35 qm. Dieser Wohnbereich nimmt weitere 1.700 qm des Gebäudes in Anspruch. Die Apartments sind zweckmäßig geschnitten und werden an Langzeitmieter vermietet. Sie sind über einen separaten Zugang erreichbar und können losgelöst von den beiden anderen Bereich genutzt werden.

Für das gesamte Gebäude wurde ein zehnjähriger Generalmietvertrag mit einem ortsansässigen Gastronomen verhandelt und unterschrieben.